Thiết kế phòng ngủ master chung cư tại Hà Nội giản dị ấm áp
- Người viết: HaLamp lúc
- Thiết Kế Nội Thất Phòng Ngủ
THIẾT KẾ PHÒNG NGỦ MASTER CHUNG CƯ TẠI HÀ NỘI GIẢN DỊ ẤM ÁP
Trong các chung cư ở Hà Nội việc phân chia không gian chức năng bao giờ cũng ưu tiên một không gian đẹp và diện tích lớn cho phòng ngủ master.
Mẫu thiết kế phòng ngủ master được thiết kế tại Halamp mang đến một phong cách giản dị ấm áp thay vì sự cầu kỳ, xa hoa.
Một phòng ngủ master ấm áp không chỉ để nghỉ ngơi mà còn mang nhiều nét văn hóa, trưng bày nghệ thuật.

Thiết kế nội thất phòng ngủ master căn hộ chung cư
Đặc trưng phòng ngủ master ở các chung cư Hà Nội
- Phòng ngủ có diện tích vừa phải, thường từ 15-25m2
- Phòng ngủ master thường có cửa sổ rộng hoặc có thể có 1 logia
- Phòng ngủ maste thường bố trí 1 WC trong phòng
- Phòng ngủ master thường có tủ áo lớn hơn các phòng khác
- Phòng ngủ master thường ưu tiên cho ông bà hoặc bố mẹ
- Yêu cầu tối ưu công năng: vừa nghỉ ngơi, vừa có không gian lưu trữ, tích hợp góc làm việc trang điểm…
Nguyên tắc thiết kế phòng ngủ master giản dị, ấm áp
- Chất liệu: Gỗ tự nhiên, hoặc kết hợp gỗ công nghiệp, mầu từ gỗ sáng đến màu nâu trầm, sơn màu ghi, kem, tone mầu gỗ điều chỉnh tùy từng phòng
- Màu sắc: thường phòng master có tone màu trung tính, hoặc thiết kế theo mệnh của gia chủ.
- Đồ gỗ nội thất cơ bản: Giường ngủ, bàn trang điểm, tủ áo, táp, kệ vi vi, đèn bàn…
- Đồ trang trí: hạn chế rườm rà, tranh dán tường khổ lớn, tranh ảnh treo tường loại nhỏ, rèm cửa 2 lớp mềm mại, thảm tone màu phù hợp…
Gợi ý một số mẫu thiết kế phòng ngủ master Halamp đã thực hiện tại các chung cư quanh Hà Nội

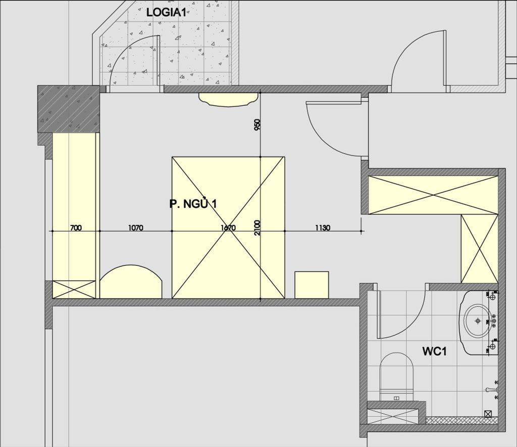
Mặt bằng phòng ngủ master căn hộ vinata tower

Thiết kế phòng ngủ master căn hộ vinata tower

Thiết kế phòng ngủ master căn hộ vinata tower

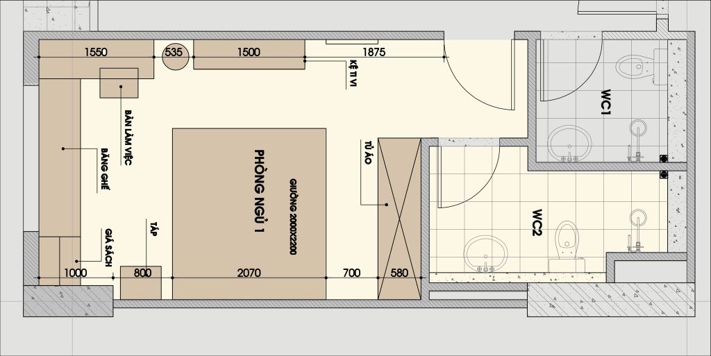
Mặt bằng phòng ngủ master căn hộ Number one

Thiết kế phòng ngủ master căn hộ Number one

Thiết kế phòng ngủ master căn hộ Number one

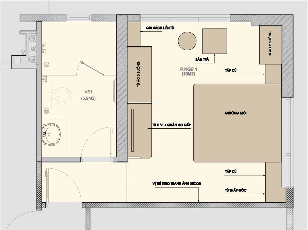
Mặt bằng phòng ngủ master căn hộ An Bình city

Thiết kế phòng ngủ master căn hộ An Bình city

Thiết kế phòng ngủ master căn hộ An Bình city

Mặt bằng phòng ngủ master căn hộ 88 Phùng Hưng

Thiết kế phòng ngủ master căn hộ 88 Phùng Hưng

Thiết kế phòng ngủ master căn hộ 88 Phùng Hưng

Mặt bằng phòng ngủ master căn hộ 25 Lê Văn Lương

Thiết kế phòng ngủ master căn hộ 25 Lê Văn Lương

Thiết kế phòng ngủ master căn hộ 25 Lê Văn Lương

Mặt bằng phòng ngủ master căn hộ Rubik cầu Giấy

Mặt bằng phòng ngủ master căn hộ Rubik cầu Giấy với gỗ Xoan Đào

Mặt bằng phòng ngủ master căn hộ Rubik cầu Giấy với gỗ Xoan Đào

Mặt bằng phòng ngủ master căn hộ Vimeco

Thiết kế phòng ngủ master căn hộ Vimeco

Thiết kế phòng ngủ master căn hộ Vimeco

Mặt bằng phòng ngủ master căn hộ West lake

Thiết kế phòng ngủ master căn hộ West lake

Thiết kế phòng ngủ master căn hộ West lake

Thiết kế phòng master chung cư The Wisteria – Hoài Đức

Thiết kế phòng master chung cư The Wisteria – Hoài Đức

Thiết kế phòng master chung cư HD Mon city

Thiết kế phòng master chung cư HD Mon city

Thiết kế phòng master chung cư An Bình city

Thiết kế phòng master chung cư An Bình city

Thiết kế phòng master chung cư Gold season

Thiết kế phòng master chung cư Gold season

Thiết kế phòng master chung cư Mulberry lane

Thiết kế phòng master chung cư Mulberry lane

Thiết kế phòng master chung cư Vinata tower 2

Thiết kế phòng master chung cư Vinata tower 2

Thiết kế phòng master chung cư 29t1 Hoàng Đạo Thúy

Thiết kế phòng master chung cư 29t1 Hoàng Đạo Thúy

Thiết kế phòng master chung cư eurowindow

Thiết kế phòng master chung cư eurowindow
Thiết kế phòng ngủ master giản dị, ấm áp là hướng lựa chọn cho các chung cư ở Hà Nội.
Có một thiết kế phòng ngủ đẹp sẽ mang lại cho bạn giấc ngủ ngon, thư giãn nuôi dưỡng cảm xúc và gắn kết gia đình.
Halamp sẵn sàng đồng hành thiết kế và thi công để mang đến phòng ngủ master phù hợp, tinh tế và tràn đầy sự ấm áp.
Địa chỉ:
Website: https://halamp.vn
Facebook.com/halamp.vn
Zalo.me/0867750420
Văn phòng: Tòa nhà HH02-1B khu đô thị Thanh Hà, Cự Khê, Thanh Oai, Hà Nội.
Xưởng gia công & hoàn thiện: Chàng Sơn, Thạch Thất, Hà Nội.







