Thiết kế nội thất tân cổ điển nhẹ nhàng đơn giản cho nhà phố
- Người viết: HaLamp lúc
- Thiết kế nội thất phong cách Việt
- - 0 Bình luận
MẪU THIẾT KẾ NỘI THẤT TÂN CỔ ĐIỂN NHẸ NHÀNG, ĐƠN GIẢN CHO NHÀ PHỐ
Với diện tích mặt tiền 5m và chiều sâu 18,8m, công trình nhà phố này được gia chủ mong muốn thiết kế mang vẻ đẹp tân cổ điển nhưng nhẹ nhàng, đơn giản, không nhiều chi tiết đắp vẽ nhưng vẫn giữ được sự sang trọng và tinh tế. Đây cũng là xu hướng được nhiều gia đình lựa chọn khi muốn tìm kiếm sự thanh lịch mà không rườm rà.
Trong bài viết này, Halamp xin giới thiệu mẫu thiết kế thực tế do chúng tôi thực hiện cùng một số gợi ý tham khảo, giúp quý khách hình dung rõ hơn về phong cách nội thất tân cổ điển đơn giản nhưng đầy cuốn hút cho nhà phố.

Thiết kế nội thất nhà phố phong cách tân cổ điển nhẹ nhàng
Đặc điểm công trình nhà phố thiết kế nội thất phong cách tân cổ điển

Hình ảnh thiết kế kiến trúc công trình với phong cách nội thất tân cổ điển
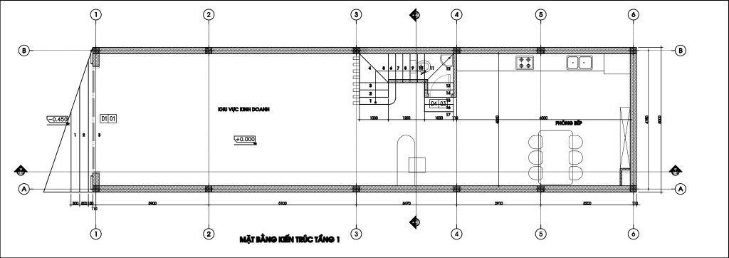
- Tầng 1: Không gian bố trí là khu vực kinh doanh bên ngoài, phía trong là khu vực bếp và bàn ăn, có bố trí 1 nhà vệ sinh dưới gầm cầu thang
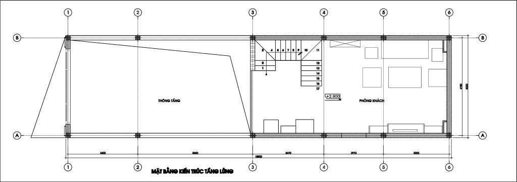
- Tầng lửng: Bố trí phòng khách và hành lang sảnh thang
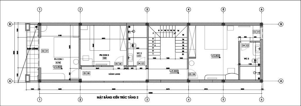
Tầng 2: Bố trí tất cả các phòng ngủ trên một mặt sàn. Bao gồm 1 phòng ngủ master có vệ sinh trong và 2 phòng ngủ riêng cho 2 con trai có 1 vệ sinh chung cho 2 phòng ngủ này.
- Tầng 3: Là phòng thờ, sân phơi, và sân có mài kính làm nơi lắp máy tập thể dục.

Thiết kế mặt bằng nhà phố tầng 1 kinh doanh

Thiết kế mặt bằng nhà phố phòng khách tầng lửng

Thiết kế mặt bằng nhà phố phòng ngủ tầng 2

Thiết kế mặt bằng nhà phố phòng thờ và sân tầng 3
Hình ảnh thiết kế từng không gian trong công trình nhà phố tân cổ điển nhẹ nhàng
- Phòng khách tầng lửng
Phòng khách bố trí bộ sofa bọc hiện đại mang hơi hướng tân cổ điển, kệ ti vi bố trí nằm giữa 2 bên tủ trang trí trưng bày tạo thành một bố cục thống nhất. Bộ ghế trà phụ bố trí gần sảnh hành lang có thể nhìn xuống dưới không gian bán hàng.








Thiết kế phòng khách tầng lửng nhà phố phong cách tân cổ điển
- Phòng ngủ master
Phòng ngủ master bố trí đầy đủ với giường 1,8x2m bọc vải nỉ đầu giường, tủ áo lớn, bàn trang điểm cùng với kệ ti vi thành bố cục thống nhất. Trang trí với phào chỉ nhẹ nhàng, bố cục trần thiết kế để che đi vị trí dầm nhà hiện trạng.





Thiết kế phòng ngủ master phong cách tân cổ điển nhẹ nhàng
- Phòng ngủ con
Phòng ngủ con thiết kế với tone màu trung tính với giường 1,6x2m, tủ áo kịch trần, bàn làm việc kết hợp giá sách bố trí gọn gàng may đo theo kích thước.




Thiết kế phòng ngủ con phong cách tân cổ điển hiện đại
Những đặc trưng của phong cách tân cổ điển nhẹ nhàng – phù hợp với nhà phố
- Bỏ bớt phào chỉ cầu kỳ
- Tập trung vào mảng khối tinh gọn, bố cục đồ đạc nội thất tạo hình cân đối
- Gam màu trắng, kem, ghi sáng điểm nhấn màu sắc từ vải đệm
- Sử dụng gỗ Sồi, gỗ óc Chó với tone màu nâu trầm hoặc màu gỗ sáng
- Chọn vật liệu bền, các chi tiết mặt tiếp xúc nhiều như mặt bàn, cánh tủ, ghế, giường… cấu tạo dựa trên gỗ tự nhiên đảm bảo sự bền vững
- Sofa cong nhẹ, tay gỗ và tựa bo mềm cấu tạo dạng trơn không đục chạm
- Bàn tủ phảo chỉ mảnh
- Đường cong tinh tế thay cho họa tiết dày đặc
Lợi ích của việc lựa chọn phong cách tân cổ điển nhẹ nhàng cho nhà phố
- Giữ được sự sang trọng mà mà không bị quá cầu kỳ.
- Tối ưu diện tích, phù hợp đa dạng mặt bằng nhà phố Việt Nam.
- Mang lại cảm giác thanh lịch, bền vững theo thời gian.
- Tiết kiệm chi phí hơn so với tân cổ điển truyền thống.
Một số hình ảnh công trình thiết kế theo hơi hướng tân cổ điển tại Halamp


Thiết kế nội thất biệt thự geleximco phong cách tân cổ điển


Thiết kế nội thất biệt thự Kim Bài - Thanh oai phong cách tân cổ điển hiện đại


Thiết kế nội thất biệt thự Hado charm villas phong cách tân cổ điển nhẹ nhàng




Thiết kế nội thất biệt thự Xanh villas phong cách tân cổ điển nhẹ nhàng


Thiết kế nội thất nhà phố Hào Nam - Hà Nội phong cách tân cổ điển nhẹ nhàng


Thiết kế nội thất chung cư hơi hướng tân cổ điển nhẹ nhàng
Một số hình ảnh gới ý cho phong cách tân cổ điển nhẹ nhàng đơn giản



Hình ảnh gợi ý tham khảo phòng khách tân cổ điển nhẹ nhàng




Hình ảnh gợi ý tham khảo phòng ngủ tân cổ điển nhẹ nhàng
Tham khảo thêm:
- Nội thất phong cách tân cổ điển thiết kế bởi Halamp
- Sự kết hợp Á- Âu trong thiết kế phòng khách The manor
- Thiết kế phòng khách chung cư đẹp gần gũi mà vẫn sang trọng
- Gợi ý bài trí đồ gỗ Việt trong không gian tân cổ điển
Địa chỉ:
Website: https://halamp.vn
Facebook.com/halamp.vn
Zalo.me/0867750420
Văn phòng: Tòa nhà HH02-1B khu đô thị Thanh Hà, Cự Khê, Thanh Oai, Hà Nội.
Xưởng gia công & hoàn thiện: Chàng Sơn, Thạch Thất, Hà Nội.

Viết bình luận